Das denkmalgeschützte Theater, welches samt seinen Mantelnutzungen sowohl das repräsentative Vorderhaus als auch zwei Hinterhäuser des sich in der Innenstadt von Kielce befindenden Grundstücks einnimmt, soll grundlegend modernisiert und ausgebaut werden.
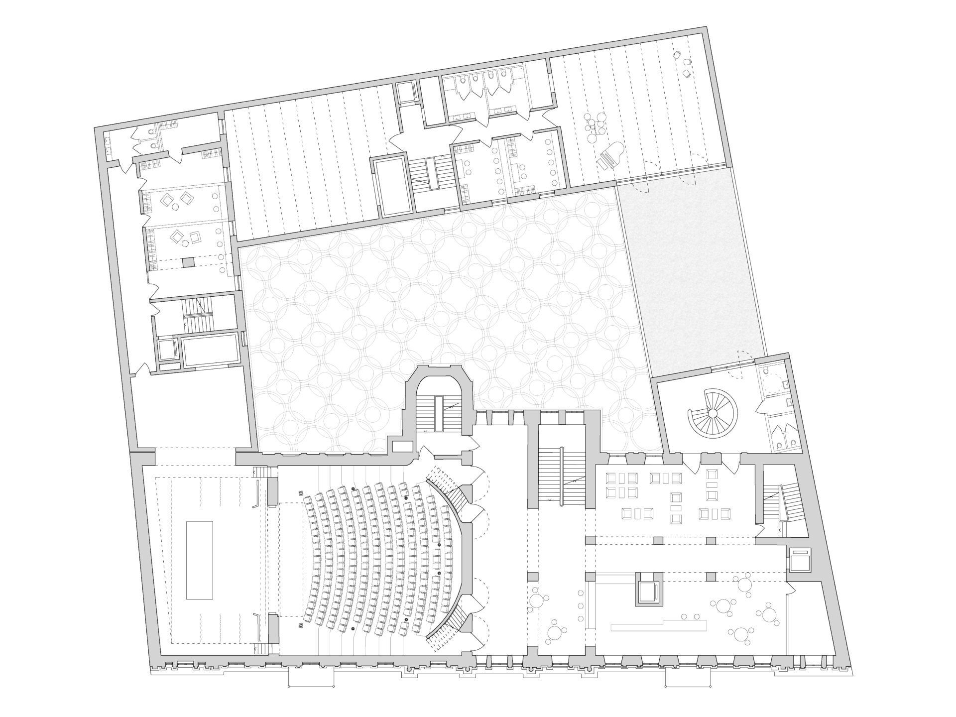
Als Ausgangspunkt des Projektes wird dessen bisher kaum exponierter Hof zum Mittelpunkt des neuen Kulturzentrums umgestaltet. Die auf zwei L-Formen basierende Bebauung staffelt sich ringsherum und bildet eine Abfolge von öffentlich bespielbaren Terrassen.
Der historisch wertvollen Grosse Saal wird einigen zurückhaltenden Eingriffen unterzogen, ohne dass er seinen einzigartigen Charakter verliert. Gleichzeitig erhält das Theater einen zeitgenössischen Kleinen Saal, welcher auch aufgrund seiner unmittelbaren Nähe zum Hof vielseitig einsetzbar ist.
Projekttyp |
Offener Wettbewerb, 2017 • 2. Preis |
Auslober |
Stefan Zeromski Theater |
Projektteam |
In zusammenarbeit mit m-ost Małgorzata Zmysłowska Patrycja Okuljar, Małgorzata Zmysłowska, Pamela Krzyszczak, Daniel Zielinski, Maciej Czeredys, Pawel Dobrowolski, Konrad Szpidler |
Visualisierungen |
Davide Abbonacci |
Fachplanerteam |
Zbigniew Kośka, Ewa Więckowska-Kosmala |