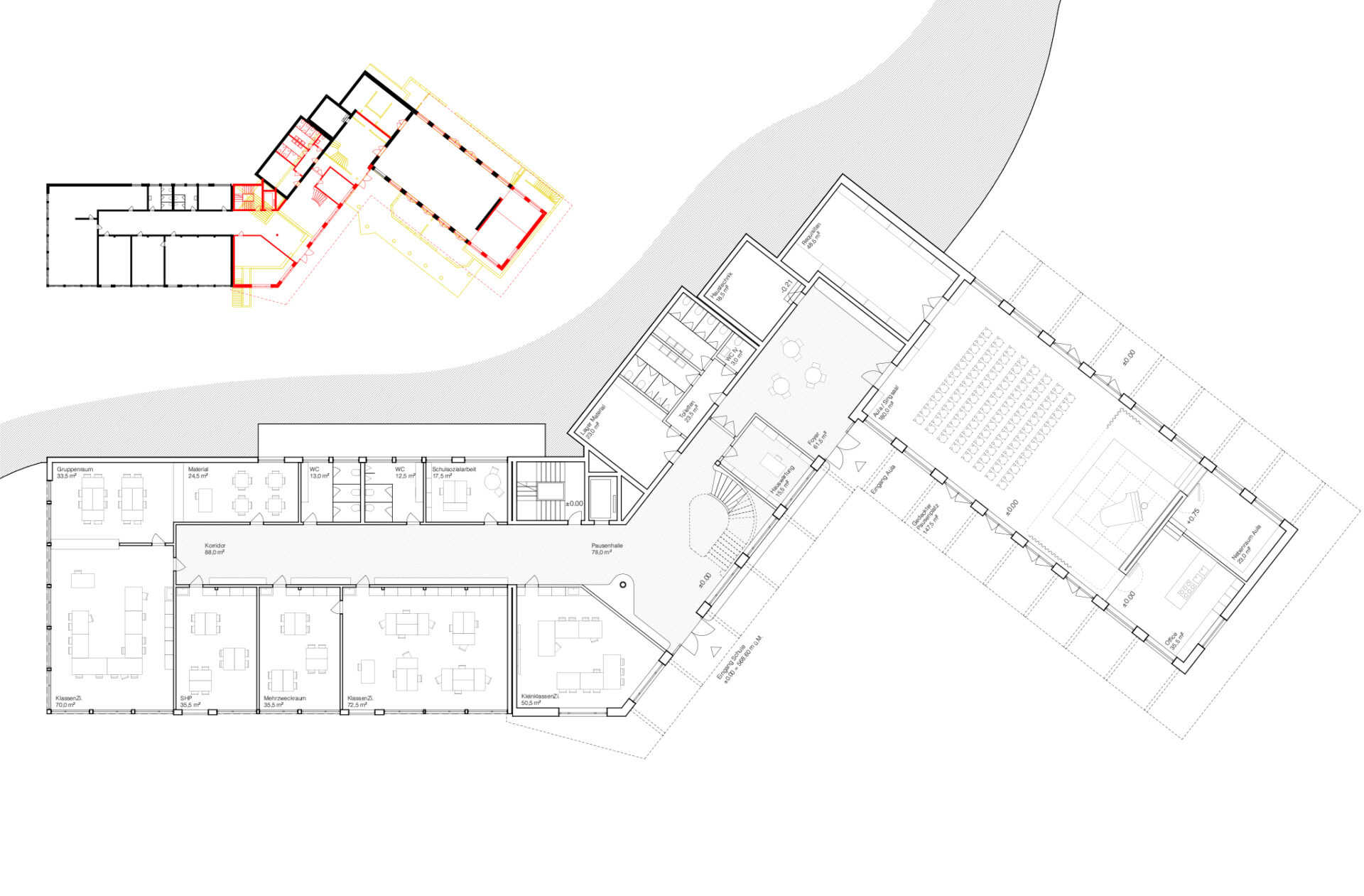
It doesn’t take much to further develop the Wilen primary school complex. Most of it is already there and we are therefore limiting our measures to the bare minimum. Nevertheless, the functionality and appearance of the school complex will be significantly improved. The stage tower is no longer needed; instead, a new, expansive roof ties all parts of the building together. The auditorium fits well into the existing structure of the 1950s gymnasium, while a new staircase in the central wing creates order and orientation. On the 1st floor, all rooms for teaching staff and school management are arranged on one level close to each other. And outside on the playground, new trees provide shade; They visually complete the facility and at the same time the connections to the gymnasium are improved.
Project type |
Offener Wettbewerb 2023 • 2. Rang |
Project team |
Studio Okuljar Architekt*innen Patrycja Okuljar, Antoni Prokop, with Łukasz Pałczyński and Caspar Schärer |
Landscape architecture |
Kuhn Landschaftsarchitekten |
Planners |
B3 Kolb AG, Christoph Angehrn Wege Energy, Jens Schuster |
Visualisations |
Antoni Prokop |