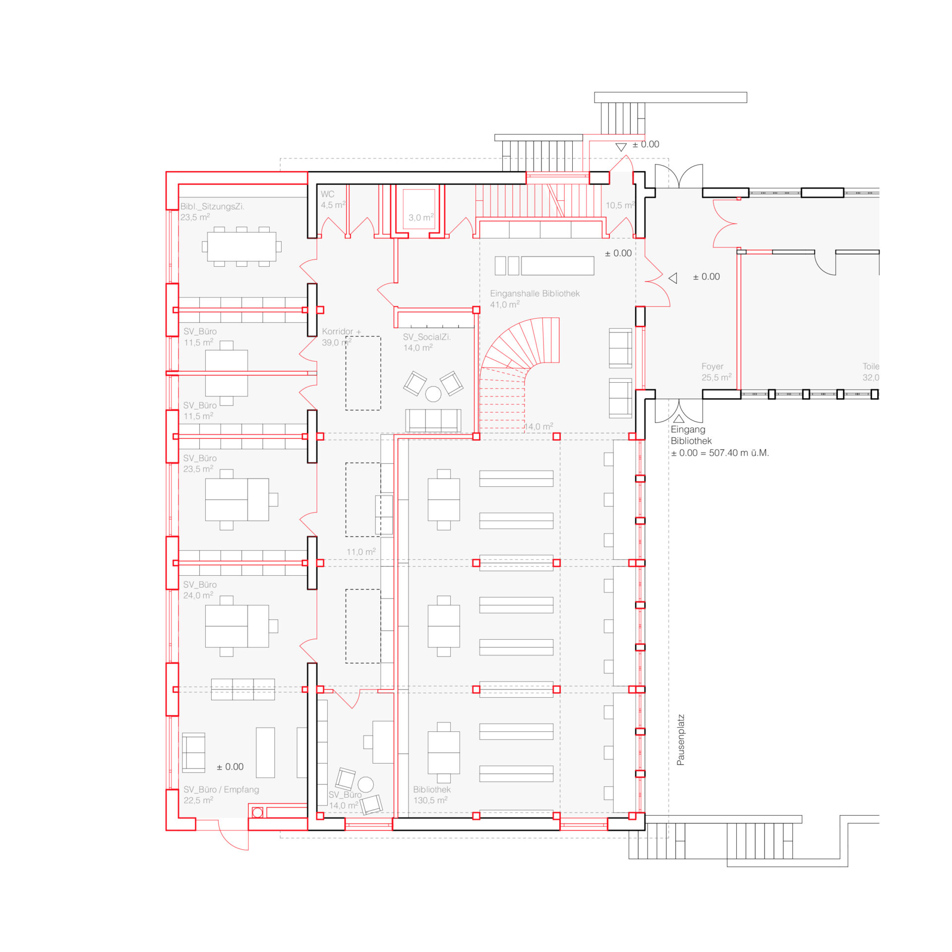
Transformation of a gymnasium at the primary school in Gossau for a new function: a municipal library with an independent area for the administration of the educational institution. The municipal library gains a new, larger location than the current one, allowing students to use it more conveniently due to its location in the school complex. In addition, the facility’s administration gains several new rooms that have been transformed from backrooms into functional office spaces.
Projekttyp |
Direct commission |
Bauherrschaft |
Gemeinde Gossau ZH |
Projektphasen |
Machbarkeitsstudie (2022 – 2023) Vorprojekt, Bauprojekt (2023 – 2024) |
Architektur |
Studio Okuljar Architekt*innen SIA Patrycja Okuljar, Antoni Prokop |
Planungsteam |
3D Kolb AG Basler & Hofmann AG Bolle Baumanagement |